Westerdok
Kaegh Allen with Space&Matter
SWEETS hotel is a radically different way to experience Amsterdam. 28 iconic bridge houses transformed into independent hotel suites on Amsterdam’s canals.
Each bridge house has been designed into a tiny 1-bedroom hotel suite that accommodates 2 people.
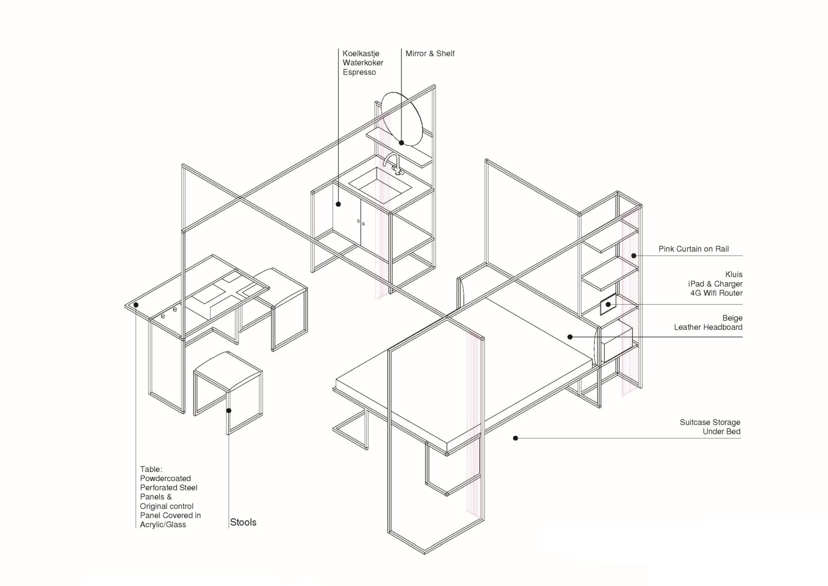
Westerdok was an interesting because due to restrictions we could not drill into the ceiling. So we had to create a self containing furniture unit that housed the bed, table and most importantly the curtains.
The piece was meticulously designed and then fabricated by a local steel craftsman in Amsterdam.





