Nieuwe Amstel
Kaegh Allen with Space&Matter
SWEETS hotel is a radically different way to experience Amsterdam. 28 iconic bridge houses transformed into independent hotel suites on Amsterdam’s canals.
Each bridge house has been designed into a tiny 1-bedroom hotel suite that accommodates 2 people.
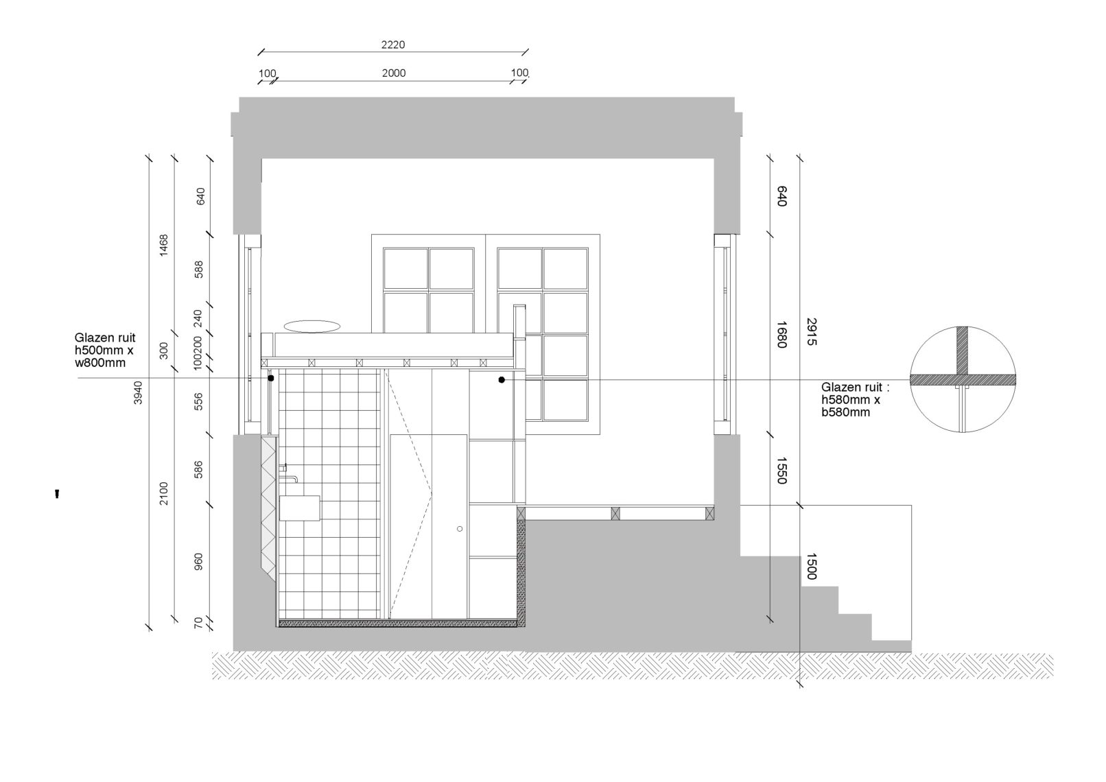
Nieuwe Amstel is probably the smallest of all the Sweets and was transformed with a unique installation. We designed a furniture piece that had a loft bed and the bathroom and storage space underneath.
We also gained precious space by removing the false ceiling and digging into the basement.











