Buiksloterdraaibrug
SWEETS hotel is a radically different way to experience Amsterdam. 28 iconic bridge houses transformed into independent hotel suites on Amsterdam’s canals.
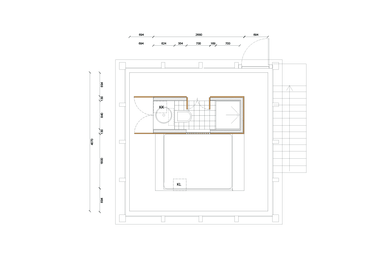
Each bridge house has been designed into a tiny 1-bedroom hotel suite that accommodates 2 people.
Buiksloterdraaibrug is set in a beautiful and calm part on the edge on the city of Amsterdam. It has windows on all 4 facades – this inspired us to create a central core that housed the bathroom and bed and left a corridor around the perimeter. We were also inspired by Japanese woodworking and this influences the finish of the core.









